新能源汽车制造业正处于急剧上升周期中,传统汽车制造业巨头-奔驰也不断在转型中优化流程。随着竞争加剧,每个流程的成本控制都异常重要。因此,作为汽车制造业流程优化的其中一环,零部件管理的降本增效被北京奔驰纳入议程中。
接到奔驰询盘后,优耐克斯结合一线工作人员的反馈和现场调研,提出目前仓储式货架方案的弊端:
1、贵重备件存储容易沾灰和丢失;
2、底层和高层的金属备件需要弯腰存取,容易产生职业损伤;
3、角落的备件光线较暗,寻找所需的备件需要花费大量时间;
4、由于货架调整层高不方便,货架存放小批量或小件货物时,浪费空间较大;
5、不同批次备件没有独立仓储空间;
6、固化的仓储空间难以适应随时变化的备件品种和规格;
7、库房凌乱,影响公司和品牌形象。
优耐克斯提出用模块化的抽屉式储物柜作为一个仓储单元,再利用这种单元搭建成一个小型的存储墙和错层抽屉柜系统,既可用于车间隔断,又可节省大量仓储空间。
整个系统的好处如下:
1、中央锁控制的封闭式空间满足了备件的精细化管理;
2、全开式抽屉收纳空间无死角,无需担心照度和弯腰存取问题;
3、每个柜子、抽屉、分隔片都可以独立贴标分类,便于快速寻找货物;
4、抽屉空间可根据物料尺寸随时轻松调整,因此,每个空间都能得到充分利用;
5、每个抽屉最大承重可达200kg,并由多种分区组件进行分隔,确保每种备件都有独立空间;
6、抽屉柜系统的仓储空间可根据业务拓展随时扩充和灵活布局;
抽屉柜系统的搭建既充分利用了高度空间,又实现了整洁、美观、高效的备件存储。因此,方案提出后,随即得到北京奔驰的高度认可,并选出总装车间作为试点,试点成功后再推广至其他区域。
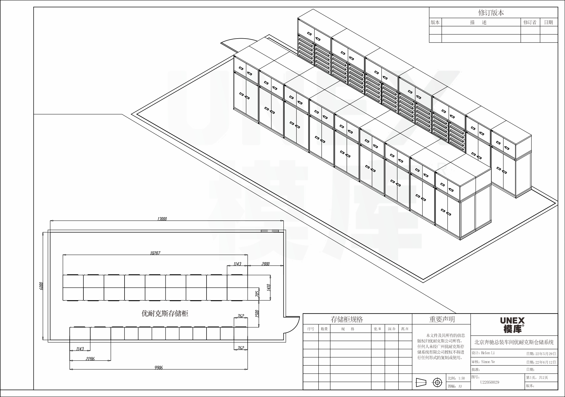
最终确认后的方案由3排存储墙和1个小型错层系统组成。方案交付后,获得了一线员工、主管及项目团队的一致赞赏。
小型错层系统由两层高强度工具柜组成,底下1层工具柜的顶部作为上层工具柜的通道,铺装实木台面后防震静音。所有工具柜在顶部、底部、侧面预埋隐性连接孔,在现场安装时只需上紧连接螺栓即可。
工具柜的刚性框架允许最高4层叠放,确保整个错层系统安全坚固、高效耐用。
大件货物存放于底层的双开门置物柜,常用物料放在抽屉式存储柜,整体方案既能满足仓储需求,又减少了重型轨道的使用,整体预算显著减少,体现出了更好的投资回报率。
加高柜和200kg级别抽屉柜组成的3排存储墙,满足了大件货物和小型零部件的存储需求:
全开式的抽屉柜和空间分区,即可用于不同备件的独立仓储,又了员工伸长手臂、垫脚、弯腰等存取动作。
“优耐克斯的专业知识和创新使万象城官网 - 万象城awc能够为日益变化的未来定制设计最佳的零配件存储方案。”— 北京奔驰
作为专业的awc万象城网址架、工具柜、车间工作台制造商,优耐克斯已为奔驰、宝马、特斯拉、博世、法雷奥、本田、丰田等整车和零部件制造用户交付了大量成功案例。此外,万象城官网 - 万象城awc的产品也在航空航天、国防军工、石油化工、轨道交通、家电制造、橡塑五金、教育培训等众多领域拥有数量庞大的用户,欢迎联系万象城官网 - 万象城awc,一起探讨工业存储的持续改善方案,获取产品画册及案例手册。